当前位置 : 首页> 春武里府->春武里府 |【紫色区】Amata工业园区里私人工厂出租 3,475平米 每平米270泰铢/月

【春武里府工厂仓库出租/售 】春武里府 |【紫色区】Amata工业园区里私人工厂出租 3,475平米 每平米270泰铢/月

最近更新: 01月28日 更新   |    房源编号:FY0020285    |     浏览人次:1111
店鋪
称呼:泰国好房网
公司注册号: 0105563066648
所属公司: 泰国好房网
公司地址: 30th Floor,160/753 ITF Silom Palace,Silom Rd,Bangrak,Bangkok,Thailand.
经纪人房源
0658833344
留言查詢

楼盘概况

  • 月租:60 元
  • 约泰铢: 270  THB
  • 房型面积: 3475  平方
  • BTS轻轨 : 不适用
  • MRT地铁 : 不适用
  • 房间 : 单间
  • 客厅 : 1厅
  • 卫浴 : 1卫浴
  • 楼层 : 不适用
  • 装修状况 : 精装修
  • 朝向 :
  • 押金 : 面议
  • ALR机场专线 : 不适用

小区信息

详细描述

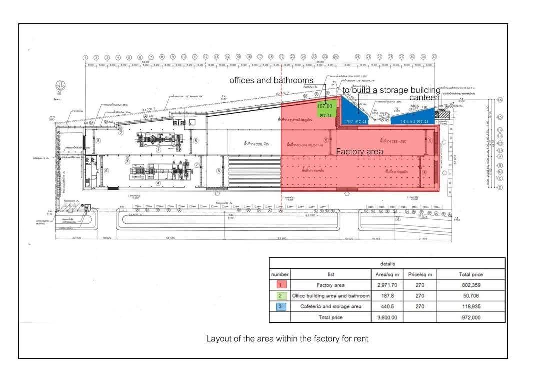
春武里府 |【紫色区】Amata工业园区里私人工厂出租 AA-2025-01-50

总面积:3,475 平米

工厂面积:3,167.2 平米

地面承重:5-7 吨

高度:9-12 米

有2台大型起重机

可用于任何类型的工厂,除了冶炼厂

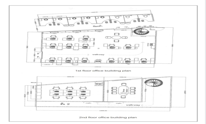
办公室:187.8 平方米

食堂和储物室:120 平方米

**在装修期间可免一个月租金**

出租:每平米270泰铢/月,押三付一,三年合同起上

(不包括财产税/建筑保险/公共费用与业主各半)


你可能有兴趣的楼盘

周边配套

房价走势

暂无数据
免责声明: 本页面仅供参考和借鉴,一切以售楼处公布为准
联 系 人:
联系电话:
沪ICP备18013953号

邮箱:ithaihome@gmail.com

小程序 欢迎使用小程序