当前位置 : 首页> 其他城市->大城府 | Uthai,Rojana工业园区里私人工厂出租 5,250平米 每平米200泰铢/月

【大城府 】大城府 | Uthai,Rojana工业园区里私人工厂出租 5,250平米 每平米200泰铢/月

最近更新: 2025年09月04日 更新   |    房源编号:FY0024465    |     浏览人次:659
店鋪
称呼:泰国好房网
公司注册号: 0105563066648
所属公司: 泰国好房网
公司地址: 30th Floor,160/753 ITF Silom Palace,Silom Rd,Bangrak,Bangkok,Thailand.
经纪人房源
0658833344
留言查詢

楼盘概况

  • 月租:40 元
  • 约泰铢: 200  THB
  • 房型面积: 5250  平方
  • BTS轻轨 : 不适用
  • MRT地铁 : 不适用
  • 房间 : 单间
  • 客厅 : 1厅
  • 卫浴 : 1卫浴
  • 楼层 : 不适用
  • 装修状况 : 精装修
  • 朝向 :
  • 押金 : 押二付一
  • ALR机场专线 : 不适用

小区信息

详细描述

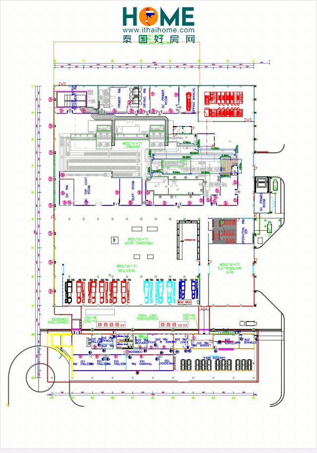
大城府 | Uthai,Rojana工业园区里私人工厂出租 AA-2025-09-23

土地面积:19.3莱,有工厂许可证

工厂面积:5,250平米

地板能承重:3-5吨/平米

高度约:12米,三相电

KVA 2,000=1 Unit

KVA 1,000=2 Unit

  • 已配备自来水系统 / 污水处理系统

租赁条件
租金:(不含VAT)

  • 200 泰铢/平方米 = 1,050,000 泰铢/月
    押金:3 个月,预付:一个月,三年合同起上

原为汽车零部件生产工厂




你可能有兴趣的楼盘

周边配套

房价走势

暂无数据
免责声明: 本页面仅供参考和借鉴,一切以售楼处公布为准
联 系 人:
联系电话:
沪ICP备18013953号

邮箱:ithaihome@gmail.com

小程序 欢迎使用小程序