当前位置 : 首页> 曼谷-北揽>北榄府 |【普通区】Theparak — Bang Sao Thong 工厂出租 面积起982~2,352平方米 每平米180泰铢/月

【北榄府-Bang Sao Thong县 】北榄府 |【普通区】Theparak — Bang Sao Thong 工厂出租 面积起982~2,352平方米 每平米180泰铢/月

最近更新: 5小时前 更新   |    房源编号:FY0025123    |     浏览人次:234
< >
店鋪
称呼:泰国好房网
公司注册号: 0105563066648
所属公司: 泰国好房网
公司地址: 30th Floor,160/753 ITF Silom Palace,Silom Rd,Bangrak,Bangkok,Thailand.
经纪人房源
0658833344
留言查詢

楼盘概况

  • 月租:36 元
  • 约泰铢: 180  THB
  • 房型面积: 982  平方
  • BTS轻轨 : 不适用
  • MRT地铁 : 不适用
  • 房间 : 单间
  • 客厅 : 1厅
  • 卫浴 : 1卫浴
  • 楼层 : 不适用
  • 装修状况 : 毛坯
  • 朝向 :
  • 押金 : 面议
  • ALR机场专线 : 不适用

小区信息

详细描述

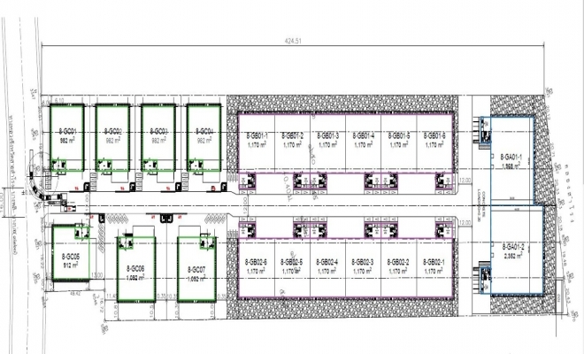
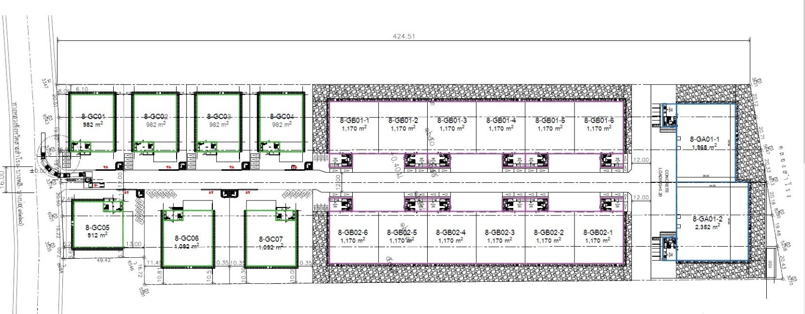
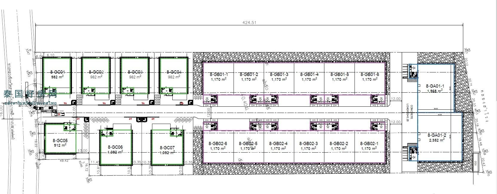
北榄府 |【普通区】Theparak — Bang Sao Thong 工厂出租 UO-2025-10-35

**今年年底完工**

面积起始:982 平方米

面积:2,352 平方米

面积:1,968 平方米

面积:1,092 平方米

面积:1,170 平方米

出租:每平米180 泰铢/平方米,押四付一,三年合同起上


根据图片说明(建设进度与空置情况)

  • 前侧区域:仅剩 1 个单位 8-GC03,预计 2026 年 6 月完工

  • 后侧区域:单位 8GA1.1–8GA1.2,预计 2026 年 10 月完工

  • 中间区域:目前全部空置,预计 2026 年 11 月完工

LINE_NOTE_251016_1.jpg

你可能有兴趣的楼盘

周边配套

房价走势

暂无数据
免责声明: 本页面仅供参考和借鉴,一切以售楼处公布为准
联 系 人:
联系电话:
沪ICP备18013953号

邮箱:ithaihome@gmail.com

小程序 欢迎使用小程序