当前位置 : 首页> 其他城市->曼谷萱銮区 | 紧邻Onnut路 多面积仓库+办公室出租 78~116.4平米 35,000~37,000泰铢

【私有产权 】曼谷萱銮区 | 紧邻Onnut路 多面积仓库+办公室出租 78~116.4平米 35,000~37,000泰铢

最近更新: 2025年01月10日 更新   |    房源编号:FY0020142    |     浏览人次:733
店鋪
称呼:泰国好房网
公司注册号: 0105563066648
所属公司: 泰国好房网
公司地址: 30th Floor,160/753 ITF Silom Palace,Silom Rd,Bangrak,Bangkok,Thailand.
经纪人房源
0658833344
留言查詢

楼盘概况

  • 月租:7018 元
  • 约泰铢: 35000  THB
  • 房型面积: 78  平方
  • BTS轻轨 : 不适用
  • MRT地铁 : 不适用
  • 房间 : 单间
  • 客厅 : 1厅
  • 卫浴 : 1卫浴
  • 楼层 : 不适用
  • 装修状况 : 精装修
  • 朝向 :
  • 押金 : 押二付一
  • ALR机场专线 : 不适用

小区信息

  • 物业设施:
    项目地址见详情介绍

详细描述

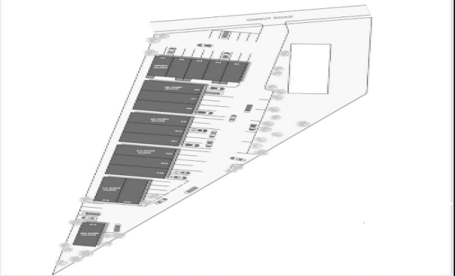
曼谷萱銮区 | 紧邻Onnut路 多面积仓库+办公室出租 UO-2025-01-31

A1-A5号

面积:78平米/栋

出租:35,000泰铢/月/栋


A6-A15号

面积:116.4平米/栋

出租:37,000泰铢/月/栋


宽6米,深16米=96平方米

夹层面积 21 平方米

总计117平方米


押金两个月,预付一个月,三年合同起上

水费20泰铢/单位,电费7泰铢/单位


你可能有兴趣的楼盘

周边配套

暂无数据

房价走势

暂无数据
免责声明: 本页面仅供参考和借鉴,一切以售楼处公布为准
联 系 人:
联系电话:
沪ICP备18013953号

邮箱:ithaihome@gmail.com

小程序 欢迎使用小程序