当前位置 : 首页> 其他城市->罗勇府 | Taphong区 工厂仓库出租 1,640平米 150,000泰铢/月

【私有产权 】罗勇府 | Taphong区 工厂仓库出租 1,640平米 150,000泰铢/月

最近更新: 2025年01月14日 更新   |    房源编号:FY0020208    |     浏览人次:879
店鋪
称呼:泰国好房网
公司注册号: 0105563066648
所属公司: 泰国好房网
公司地址: 30th Floor,160/753 ITF Silom Palace,Silom Rd,Bangrak,Bangkok,Thailand.
经纪人房源
0658833344
留言查詢

楼盘概况

  • 月租:30075 元
  • 约泰铢: 150000  THB
  • 房型面积: 1640  平方
  • BTS轻轨 : 不适用
  • MRT地铁 : 不适用
  • 房间 : 单间
  • 客厅 : 1厅
  • 卫浴 : 1卫浴
  • 楼层 : 不适用
  • 装修状况 : 精装修
  • 朝向 :
  • 押金 : 押二付一
  • ALR机场专线 : 不适用

小区信息

  • 物业设施:
    项目地址见详情介绍

详细描述

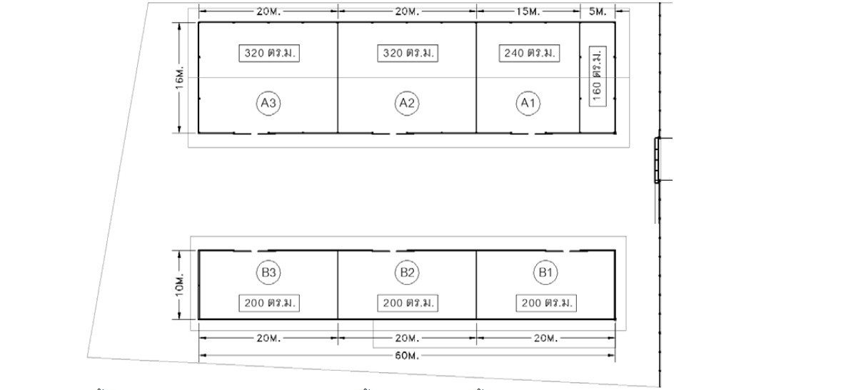
罗勇府 | Taphong区 工厂仓库出租 UO-2025-01-42

仓库有2栋

占地面积:1,640平米

2层办公室:80平米/层(5x16米*2)

A1面积:240平米(15x16米)

A2/A3面积:320平米(20x16米)

B1/B2/B3面积:200平米(20x10米)

*变压器630KVA,可做工厂

*推拉钢门,宽5米,高4米

出租:150,000泰铢/月,押二付一,一至三年合


你可能有兴趣的楼盘

周边配套

暂无数据

房价走势

暂无数据
免责声明: 本页面仅供参考和借鉴,一切以售楼处公布为准
联 系 人:
联系电话:
沪ICP备18013953号

邮箱:ithaihome@gmail.com

小程序 欢迎使用小程序