当前位置 : 首页> 其他城市->罗勇府 |【紫色区】比亚迪附近 全新厂房出租 2,700~7,200平米 每平米160~180泰铢/月

【私有产权 】罗勇府 |【紫色区】比亚迪附近 全新厂房出租 2,700~7,200平米 每平米160~180泰铢/月

最近更新: 2025年02月17日 更新   |    房源编号:FY0020785    |     浏览人次:951
店鋪
称呼:泰国好房网
公司注册号: 0105563066648
所属公司: 泰国好房网
公司地址: 30th Floor,160/753 ITF Silom Palace,Silom Rd,Bangrak,Bangkok,Thailand.
经纪人房源
0658833344
留言查詢

楼盘概况

  • 月租:34 元
  • 约泰铢: 160  THB
  • 房型面积: 2700  平方
  • 可使用日期:  
  • BTS轻轨 : 不适用
  • MRT地铁 : 不适用
  • 房间 : 单间
  • 客厅 : 1厅
  • 卫浴 : 1卫浴
  • 楼层 : 不适用
  • 装修状况 : 精装修
  • 朝向 :
  • 押金 : 押三付一
  • ALR机场专线 : 不适用

小区信息

  • 物业设施:
    项目地址见详情介绍

详细描述

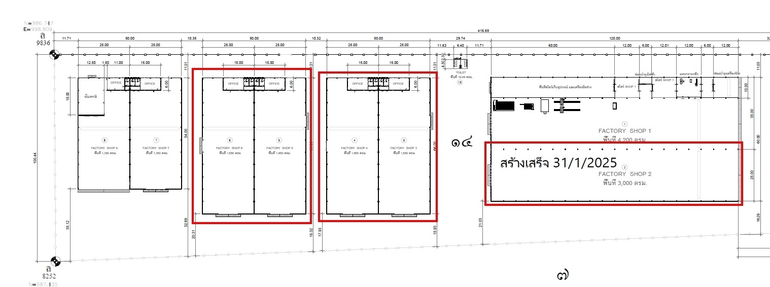
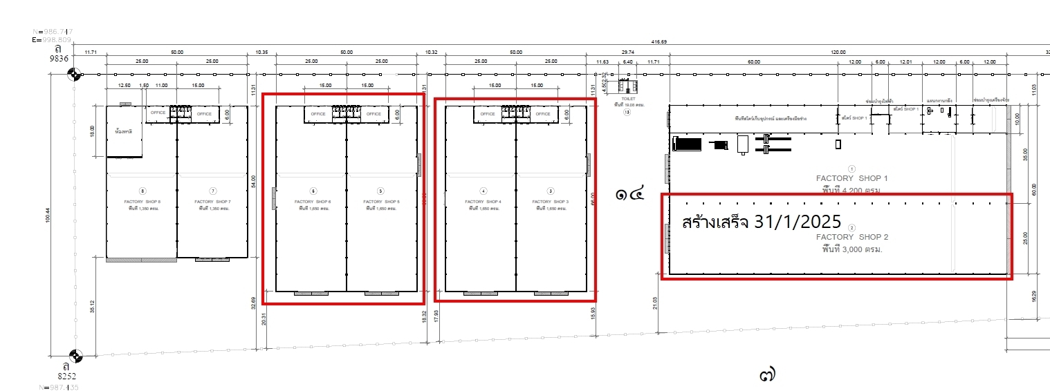
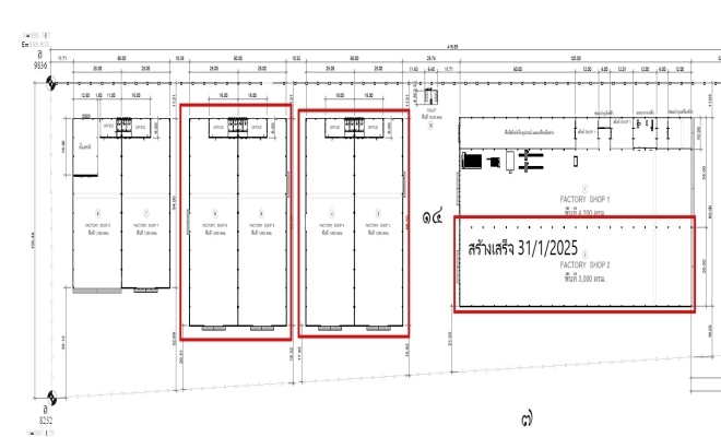
罗勇府 |【紫色区】比亚迪附近 全新厂房出租 UO-2025-02-43

有面积2,700~7,200平米

S1,2 120米X60米,7200平方米(业主自用)
S3,4. 66米X50米,3300平方米
S5,6. 66米X50米,3300平方米
S7,8. 54米X50米,2700平方米

高度约:14.6-17米

出租:每平米160泰铢/月(不要用天车)

出租:每平米180泰铢/月(用天车)

押金三个月,预付一个月,三年合同起上


你可能有兴趣的楼盘

周边配套

暂无数据

房价走势

暂无数据
免责声明: 本页面仅供参考和借鉴,一切以售楼处公布为准
联 系 人:
联系电话:
沪ICP备18013953号

邮箱:ithaihome@gmail.com

小程序 欢迎使用小程序