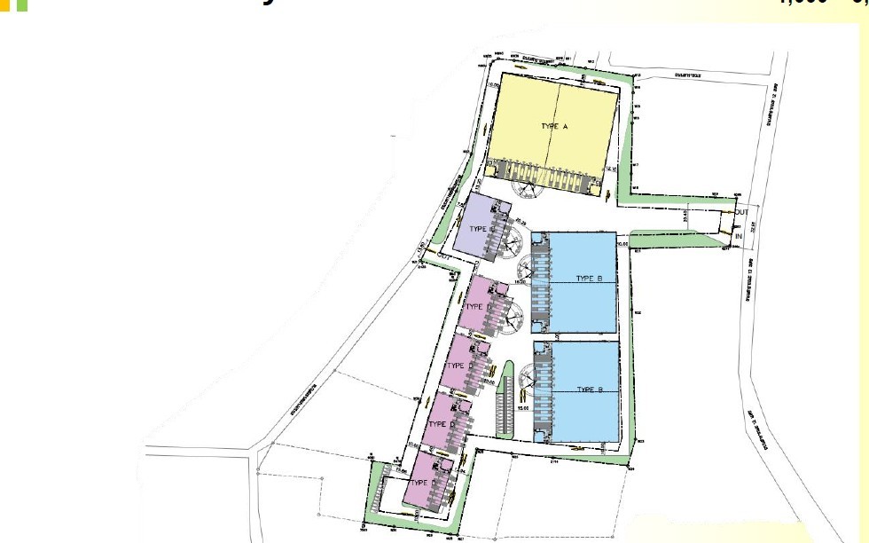
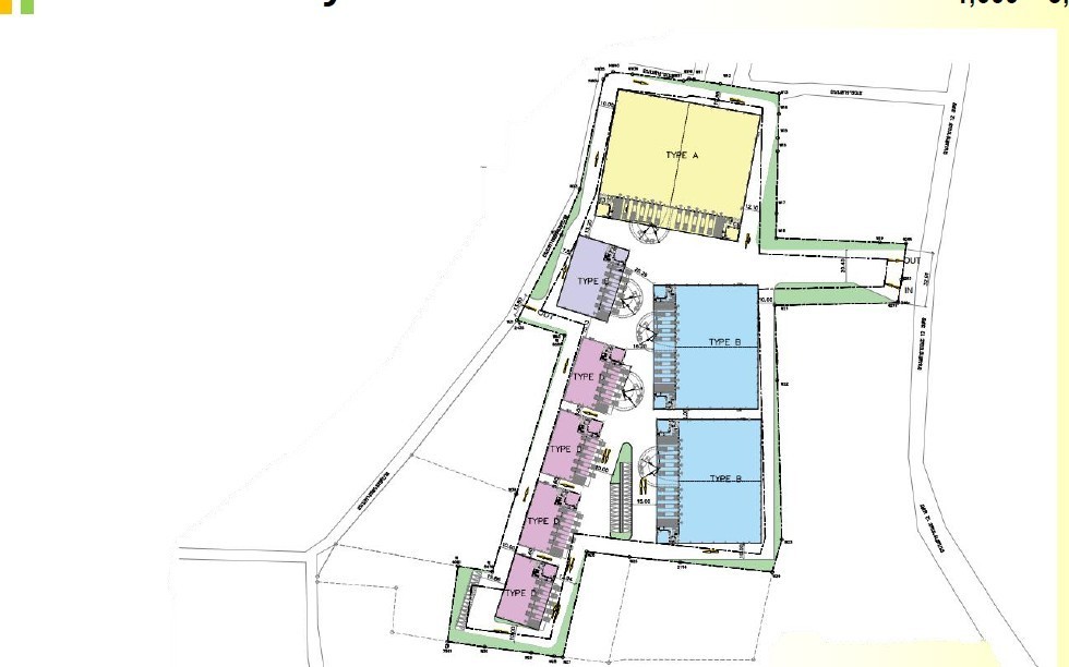
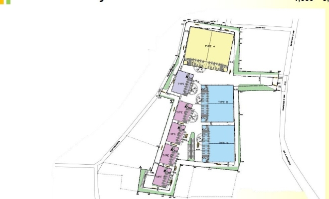
春武里府 |【紫色区】Sriracha,Laem Chabang 工厂仓库出租 UO-2025-05-67
面积起租:1,000~6,000平方米
最新可出租面积更新如下:
2A:2,104 平方米
2B:2,104 平方米
5 号楼:1,064 平方米
6 号楼:1,064 平方米
7 号楼:1,064 平方米
8 号楼:1,064 平方米
地板能承重:3-5吨
主路宽度:10米
拖车进出方便
非常适合作为配送中心或仓库
为仓库:每平米175泰铢/月,押三付一,一至三年合同起上
为工厂:每平米185泰铢/月,押三付一,一至三年合同起上






