当前位置 : 首页> 曼谷->乍都节区 | Vibhavadi Rangsit巷 办公楼出租 414平米 165,600泰铢/月(可注册公司)

【曼谷-乍都节区 】乍都节区 | Vibhavadi Rangsit巷 办公楼出租 414平米 165,600泰铢/月(可注册公司)

最近更新: 2025年08月09日 更新   |    房源编号:FY0024132    |     浏览人次:845
店鋪
称呼:泰国好房网
公司注册号: 0105563066648
所属公司: 泰国好房网
公司地址: 30th Floor,160/753 ITF Silom Palace,Silom Rd,Bangrak,Bangkok,Thailand.
经纪人房源
0658833344
留言查詢

楼盘概况

  • 月租:35160 元 /㎡
  • 约泰铢: 165600  THB
  • 房型面积: 414  平方
  • BTS轻轨 : N8MoChit
  • MRT地铁 : ChatuchakPark(BL13)
  • 房间 : 单间
  • 客厅 : 1厅
  • 卫浴 : 1卫浴
  • 楼层 : 不适用
  • 装修状况 : 精装修
  • 朝向 :
  • 押金 : 押二付一
  • ALR机场专线 : 不适用

小区信息

详细描述

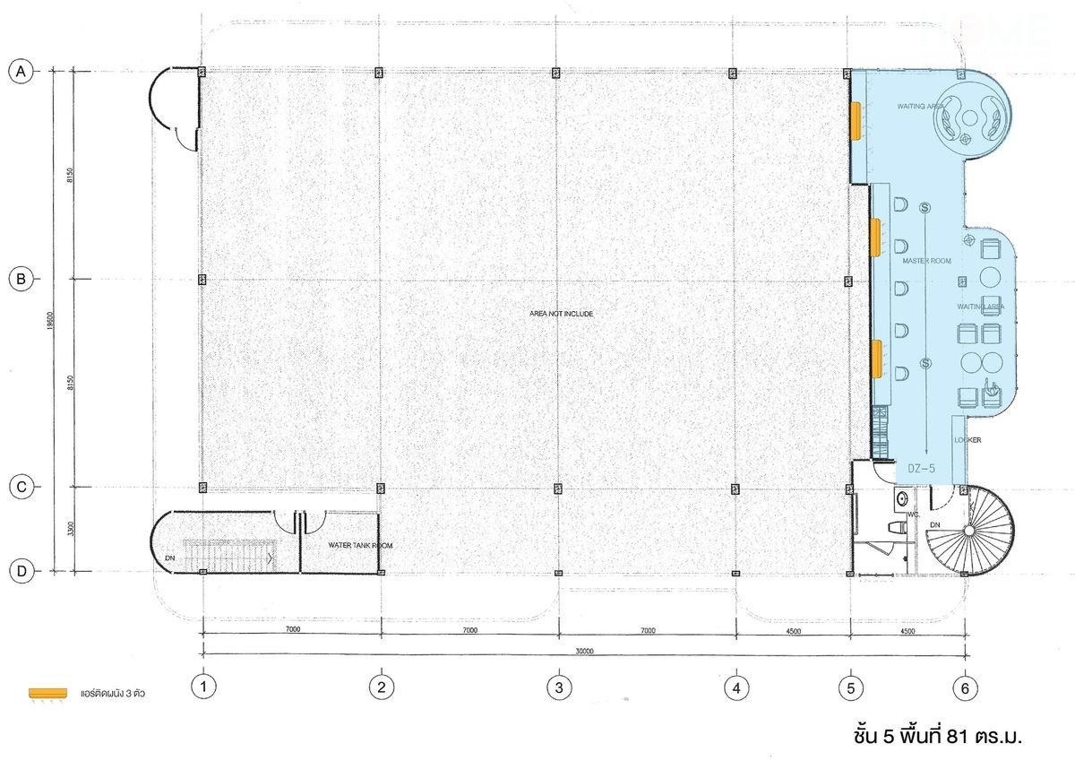
乍都节区 | Vibhavadi Rangsit巷 办公楼出租 UO-2025-08-31

商铺4层楼,使用面积

使用面积414平米

配备 60 个停车位和客用电梯
空间可用作研讨室、舞蹈室或办公室
后方设有厨房、男女分开的卫生间,并有夹层可供居住,带独立卫生间
整个区域均配备空调,能够注册公司

出租:165,600泰铢/月,押二付一,一至三年合同


你可能有兴趣的楼盘

周边配套

房价走势

暂无数据
免责声明: 本页面仅供参考和借鉴,一切以售楼处公布为准
联 系 人:
联系电话:
沪ICP备18013953号

邮箱:ithaihome@gmail.com

小程序 欢迎使用小程序