翁通郎区 | Lat Phrao — Ratchada区域 家庭办公室出租 TO-2026-02-08
可出租 2 栋
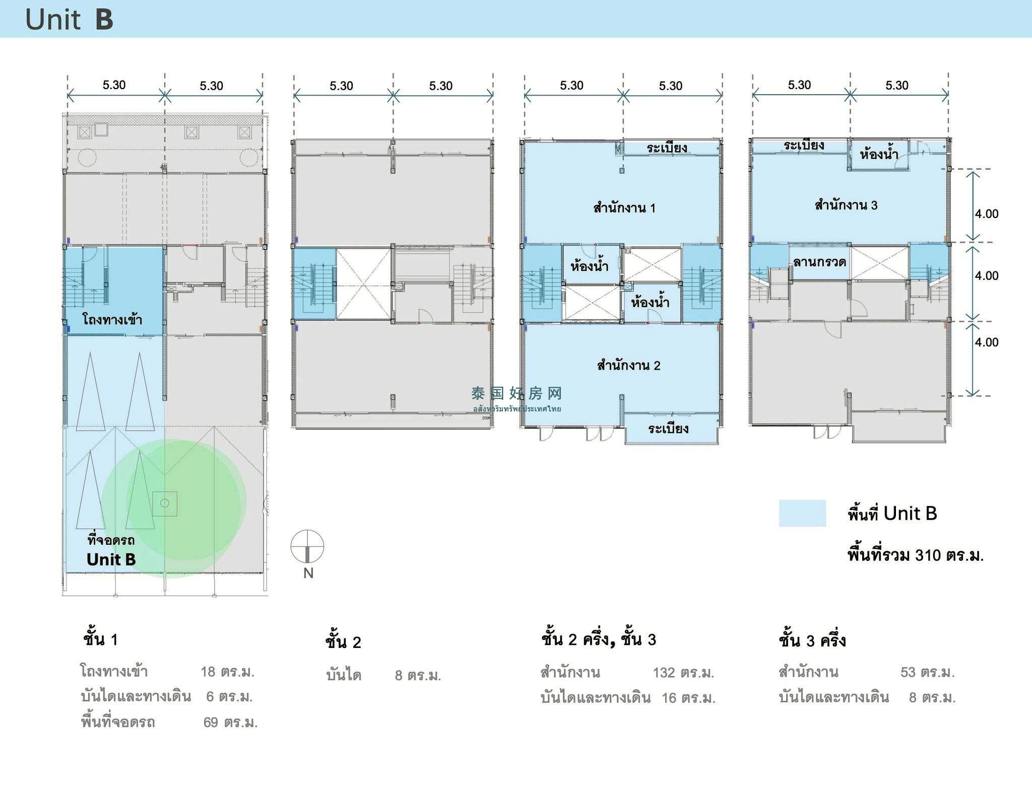
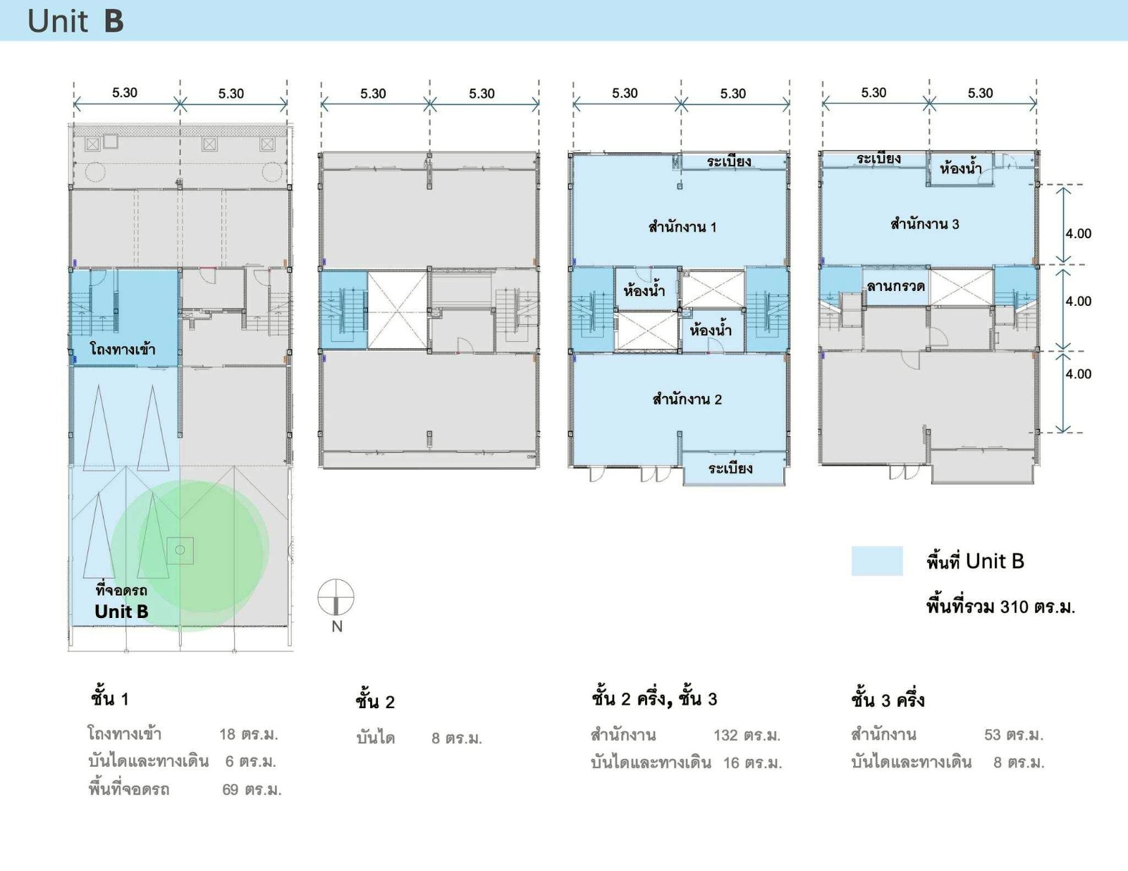
■ 面积:
每个栋约 300 平方米(具体面积以附图为准)
■ 停车条件:
可停放至少 4 辆车
■ 系统与设施:
– 三相电系统
– 预留电动车(EV)充电接口
– 空间开阔,便于家具配置,适合办公使用
– 周边绿化良好,环境安静舒适
– 租赁期内提供免费空调清洗与维护
– 刚完成整体翻新
■ 公司注册:
可用于公司注册(如需注册公司,请先说明并提供业务类型以供审核)
■ 租金:
110,000 泰铢 / 月 / 栋
水电费按实际使用量支付
租赁条件:
– 最低租期:3 年
– 预付租金:1 个月
– 押金:2 个月
位置:
– 距 MRT Lat Phrao 站约 1.9 公里
– 距 BTS Ratchayothin 站约 2.5 公里
– 距 BTS Phahonyothin 24 站约 2.5 公里











