当前位置 : 首页> 其他城市->春武里府 |【紫色区】IEAT区,Sriracha县 工厂出售 11,448平米 2.80亿泰铢

【私有产权 】春武里府 |【紫色区】IEAT区,Sriracha县 工厂出售 11,448平米 2.80亿泰铢

最近更新: 2025年02月14日更新   |    房源编号:FY0020638    |     浏览人次:1403
店鋪
称呼:泰国好房网
公司注册号: 0105563066648
所属公司: 泰国好房网
公司地址: 30th Floor,160/753 ITF Silom Palace,Silom Rd,Bangrak,Bangkok,Thailand.
经纪人房源
0658833344

留言查詢

楼盘概况

  • 售价:¥5950.84 万元
  • 约泰铢: 280000000  THB
  • 房型面积: 11448  平方
  • BTS轻轨 : 不适用
  • MRT地铁 : 不适用
  • 房间 : 单间
  • 客厅 : 1厅
  • 卫浴 : 1卫浴
  • 楼层 : 不适用
  • 裝修 : 精装修
  • 朝向 :
  • ALR机场专线 : 不适用

小区信息

  • 物业设施:
    项目地址见详情介绍

详细描述

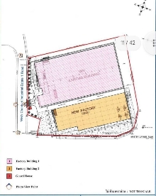
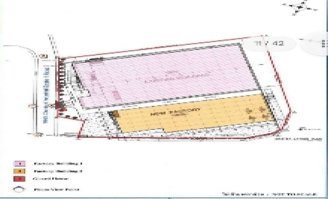
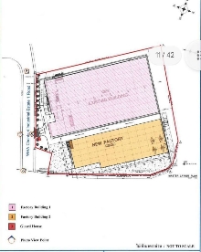
春武里府 |【紫色区】IEAT区,Sriracha县 工厂出售 AA-2025-02-29

土地面积:10-1-92莱

有2栋:

1栋,面积6,840平米

2栋,面积4,608平米

使用面积:11,448平米

高度:11.7米

靠近林查班码头

出售:2.80亿泰铢,含过户费用








你可能有兴趣的楼盘

周边配套

暂无数据

房价走势

暂无数据
免责声明: 本页面仅供参考和借鉴,一切以售楼处公布为准
联 系 人:
联系电话:
沪ICP备18013953号

邮箱:ithaihome@gmail.com

小程序 欢迎使用小程序