当前位置 : 首页> 新山-新山市中心>豪苑 Grand Medini Residence

【豪苑 Grand Medini Residence 】豪苑 Grand Medini Residence

最近更新: 2025年07月29日更新   |    房源编号:FY0023943    |     浏览人次:623
店鋪
称呼:泰国好房网
公司注册号: 0105563066648
所属公司: 泰国好房网
公司地址: 30th Floor,160/753 ITF Silom Palace,Silom Rd,Bangrak,Bangkok,Thailand.
经纪人房源
0658833344

留言查詢

楼盘概况

  • 售价:¥6.38 万元
  • 约泰铢: 300000  THB
  • 房型面积: 474  平方
  • BTS轻轨 : 不适用
  • MRT地铁 : 不适用
  • 房间 : 单间
  • 客厅 : 1厅
  • 卫浴 : 1卫浴
  • 楼层 : 30楼
  • 裝修 : 毛坯
  • 朝向 :
  • ALR机场专线 : 不适用

小区信息

  • 占地面积:
    3.23平方米
  • 竣工时间:
    2018年第三季度
  • 数:
    672户
  • 位:
    1233个
  • 楼盘栋数:
    3栋
  • 总楼层数:
    30层
  • 物业设施:
    24小时全天候保安巡逻、正门入口采用数字密码锁、指定住宅停车场通行卡、电梯通行卡、闭路电视监控系统、无边界泳池、户外按摩池、儿童嬉水池、儿童游乐场、主题景致花园、多用途礼堂、健身房、健身器械区、瑜伽区、烧烤露台;(拟建设施:儿童看护中心、阅读室/图书馆、游戏室、商业中心、休憩亭和露台、足底反射性治疗小径、 桑拿室)
  • 大楼基金费:
    30万马币起/平米

详细描述

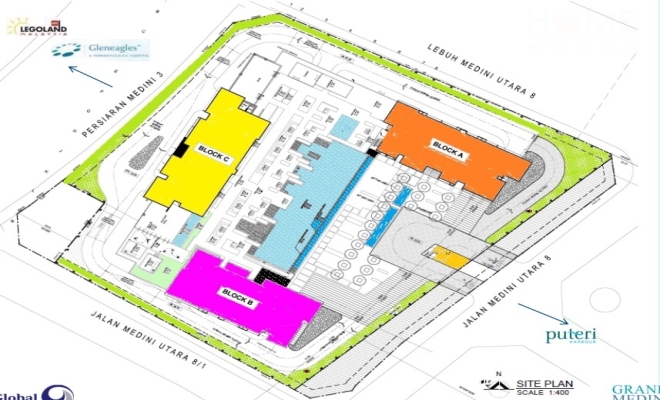
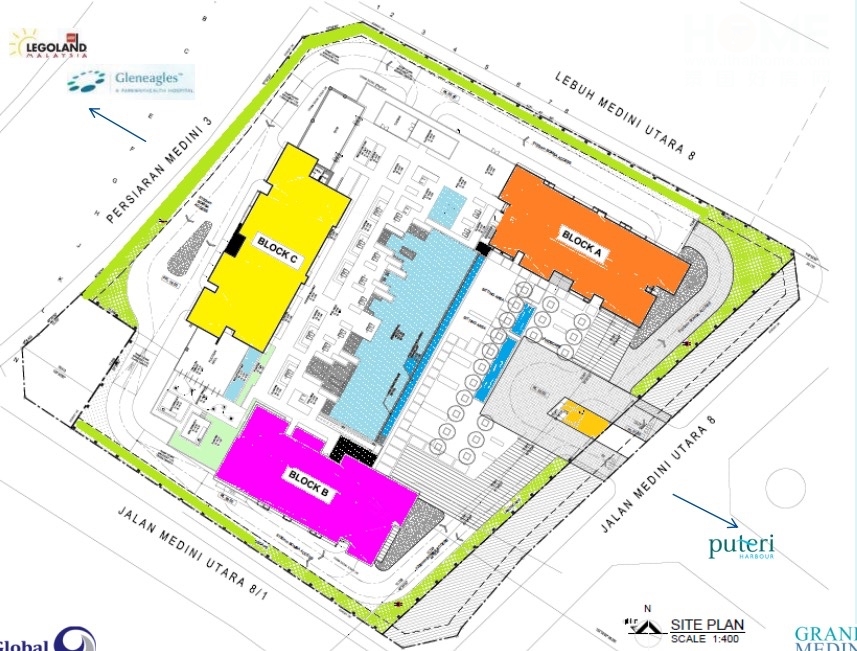
豪苑提供精致的设计、豪华的装修和无与伦比的隐私。项目由3座塔楼组成,即塔楼ABC塔楼,高度分别为30层和33层。ABC塔楼共有1233个停车位(SB1-8层)和一个设施裙楼(9层),以满足业主的便利和舒适。

独特亮点 ; · ;100%纯住宅开发项目位于美迪尼依斯干达,马来西亚特区内。

· ;低密度独家居住(6-10个单位楼)

·巨大无阻通路前往主要公路,例如:沿海高速公路,EDL,新山东海岸公路,士乃 - 迪沙鲁高速公路

· ;毗邻鹰阁医药中心

· ;5分钟步行到马来西亚乐高乐园&;美迪尼商城

· ;大量人口增长集合区:大学城镇(10所大学,估计16,000名学生,于2018年),电影城(估计8000名员工),哥打依斯干达(估计6000官立仆人),公主港客运码头(新加坡&;巴淡岛),南方工业及物流集群(登陆艇)(估计16,000名员工)等。

· ;10分钟到达第二通道关卡(大市,新加坡)

· ;4层安全系统,闭路电视监控

· ;度假风格的设备和设施

· ;绿化建筑特色,郁郁葱葱的景观

· ;高品质的部分家私装备

· ;获奖项目的著名建筑师和设计师

· ;马来西亚依斯干达未来的中央商务区

· ;无外国人100万零吉的价格上限,无外国人限额和无房地产利得税。

· ;未来的快速交通系统(RTS),新加坡高速铁路(HSR)和快速公交系统(BRT)。

首屈一指的环境

· ;第二通道

· 滨海大道

· 东部疏散大道

· 新山东海岸高速公路

· 士乃-迪沙鲁高速公路

· 新山内环公路

· 士乃主干转站

· 拟建中-2018年竣工的衔接新马铁路运输系统

环绕于极致的休闲胜地

· 马来西亚乐高乐园®

· 公主港码头

· 家庭室内主题乐园

· 柔佛名牌商品城

· 美迪尼时尚生活购物中心

· 国际景点休闲区

· 生物科技工业园

世界级的便利设施与顶尖地标性项目

· 新加坡城市中心 -40分钟

· 樟宜机场 -50分钟

· 依斯干达教育城 -5分钟

· 即将上市的美迪尼商务

金融中心 -5分钟

· 哥伦比亚亚洲医院 -12分钟

· 英格医院 -4分钟

· 士乃国际机场 -30分钟

· 哥打依斯干达 -3分钟

 ;大学城镇

·马来西亚纽卡斯尔大学医学院(NUMed)

·马来西亚马尔堡大学(MCM)

·马来西亚南安普敦大学(USMC)

·技术荷兰海事研究所(NMIT)

·马来西亚阅读大学(URM)

·依斯干达莱佛士大学(RUI)

·多媒体大学(MMU)

·新加坡管理发展学院(MDIS)

·美国莱佛士学校(RAS)

·马来西亚克鲁伊夫研究所(JCIM)

·中小学信托学校

·双威国际学校

 ; ;医疗

·美迪尼鹰阁医院

·亚洲哥伦比亚医院

 ;娱乐

·乐高乐园,马来西亚主题公园及酒店

·美迪尼购物中心

·Big Box

·Horizon Hills高尔夫球俱乐部

·Somerset酒店,Jen酒店,Ramada酒店,

·X Park

·布蒂港码头和国际客运码头

 ;其他

·马来西亚依斯干达工作室

·柔佛州新行政中心(哥打依斯干达)

·南方工业及物流中心(登陆艇)

 ;9

· 体育馆

· 50米游泳池

· 儿童戏水池

· 按摩浴缸

· 桑拿

· 多功能厅

· 烧烤露台

· 儿童游乐场及幼儿园

 ; ;屋顶露台

· ;乘凉甲板

· ;休闲茶台

· ;户外烧烤专柜茶水间

· ;观景台

· ;户外休闲

· ;党的草坪

· ;影片墙

4层安全系统以闭路电视监控

· 岗亭

· 门禁卡到大堂

· ;门禁卡至单元级层

· ;每个单元的数码门锁

其他

·马来西亚依斯干达工作室

·柔佛州新行政中心(哥打依斯干达)

·南方工业及物流中心(登陆艇)


你可能有兴趣的楼盘

周边配套

暂无数据

房价走势

暂无数据
免责声明: 本页面仅供参考和借鉴,一切以售楼处公布为准
联 系 人:
联系电话:
沪ICP备18013953号

邮箱:ithaihome@gmail.com

小程序 欢迎使用小程序