当前位置 : 首页> 曼谷-北揽>北榄府 |【黄色区】Phraeksa Mai 带办公室工厂出租 1,120平米 130,000泰铢/月

【北榄-市区 】北榄府 |【黄色区】Phraeksa Mai 带办公室工厂出租 1,120平米 130,000泰铢/月

最近更新: 2025年11月28日 更新   |    房源编号:FY0024924    |     浏览人次:241
店鋪
称呼:泰国好房网
公司注册号: 0105563066648
所属公司: 泰国好房网
公司地址: 30th Floor,160/753 ITF Silom Palace,Silom Rd,Bangrak,Bangkok,Thailand.
经纪人房源
0658833344
留言查詢

楼盘概况

  • 月租:29151 元
  • 约泰铢: 130000  THB
  • 房型面积: 1120  平方
  • BTS轻轨 : 不适用
  • MRT地铁 : 不适用
  • 房间 : 单间
  • 客厅 : 1厅
  • 卫浴 : 1卫浴
  • 楼层 : 不适用
  • 装修状况 : 精装修
  • 朝向 :
  • 押金 : 押三付一
  • ALR机场专线 : 不适用

小区信息

详细描述

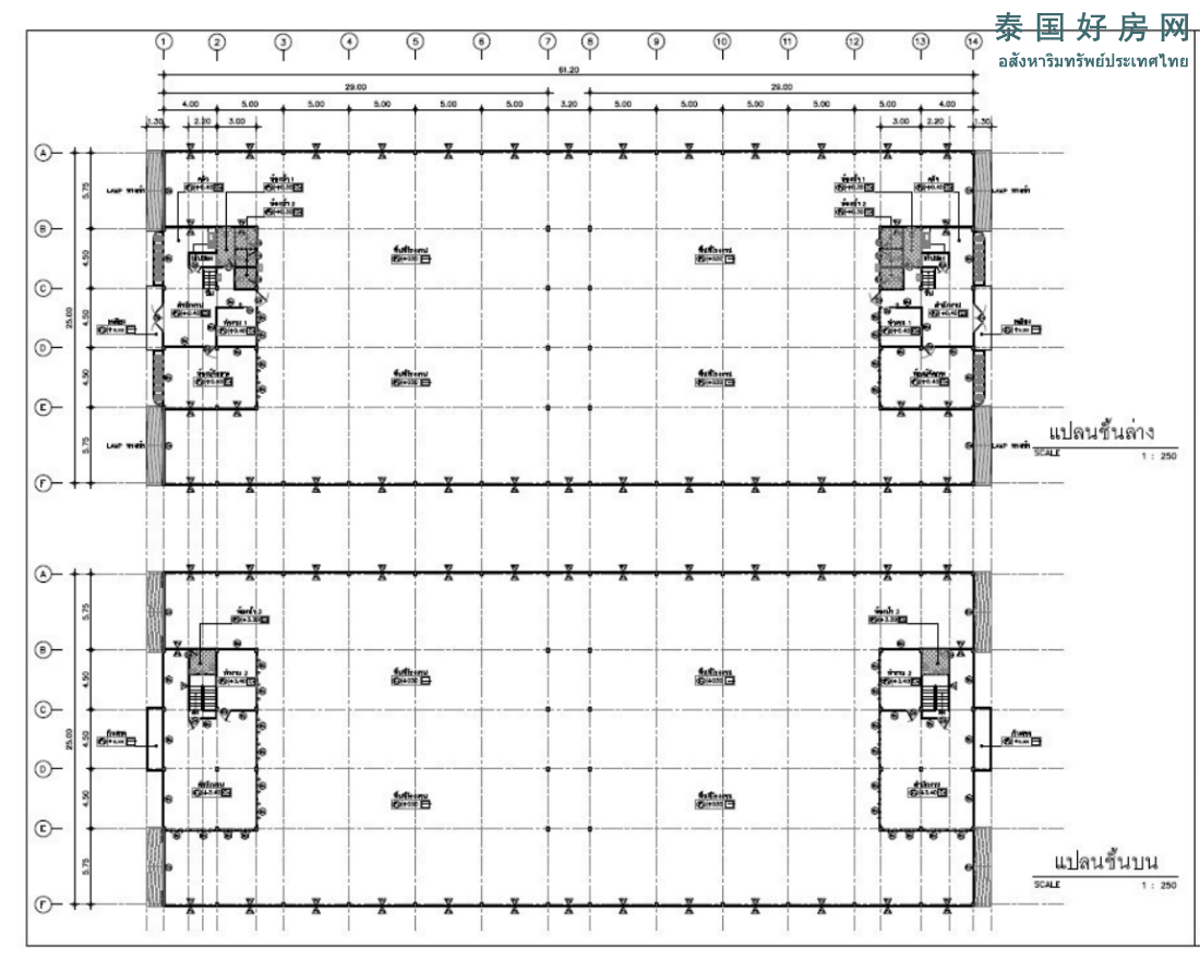
北榄府 | Phraeksa Mai 带办公室工厂出租 UO-2025-09-104

单层工厂,双层办公室
工厂面积 25×29 = 725 平方米
办公室面积 14×7 = 98 平方米
厂内及室外总面积共 1,120 平方米
电力容量:15 安,三相四线


租赁条件

租金:130,000 泰铢/月

租期:至少 3 年

押金:3 个月(合同期满且无违约可退还)

预付:1 个月(抵扣最后一个月租金)


你可能有兴趣的楼盘

周边配套

房价走势

暂无数据
免责声明: 本页面仅供参考和借鉴,一切以售楼处公布为准
联 系 人:
联系电话:
沪ICP备18013953号

邮箱:ithaihome@gmail.com

小程序 欢迎使用小程序