乍都节区 | Lat Prao — Ratchada 3x巷 家庭办公室出租/售 TO-2025-10-08
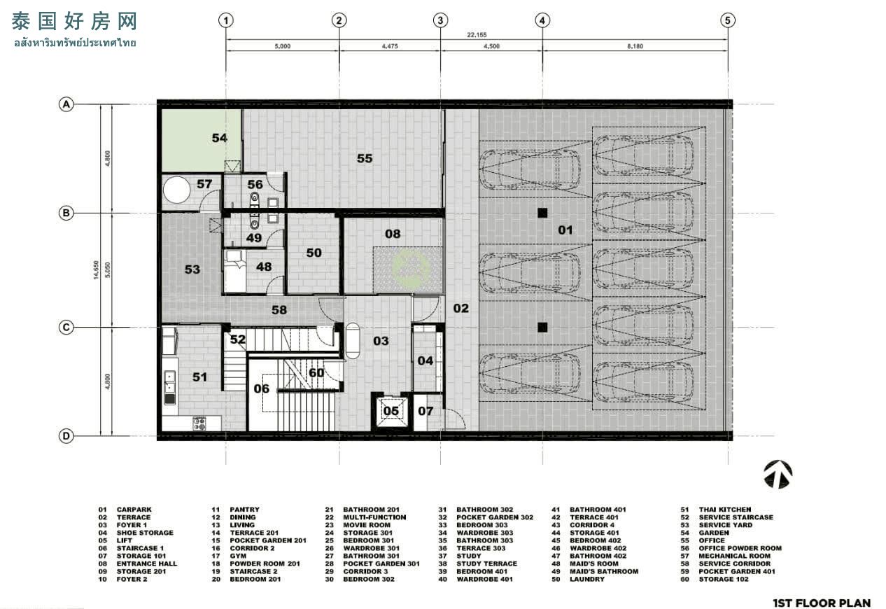
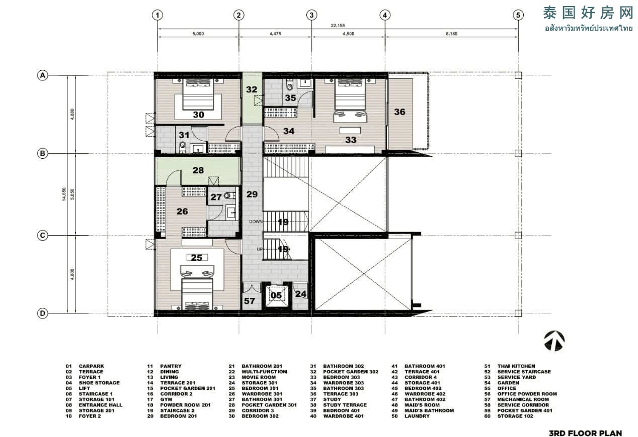
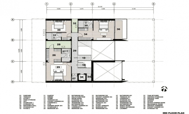
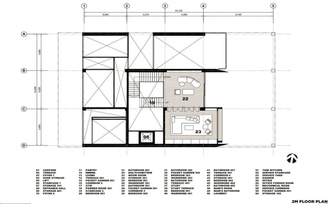
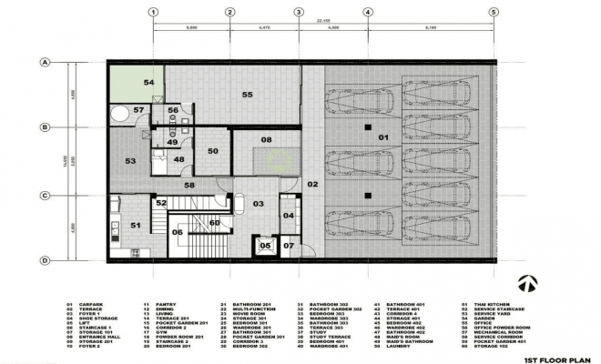
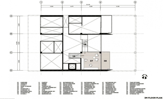
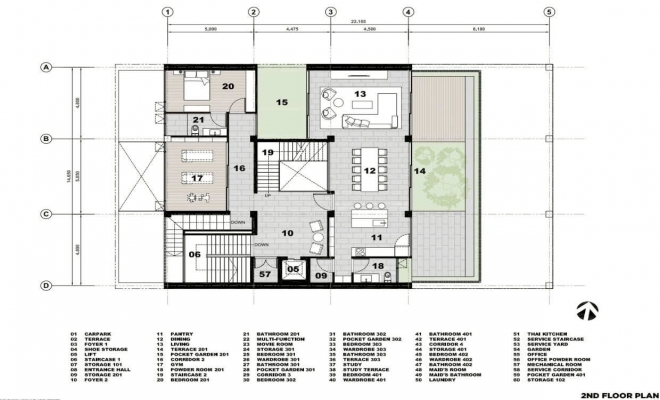
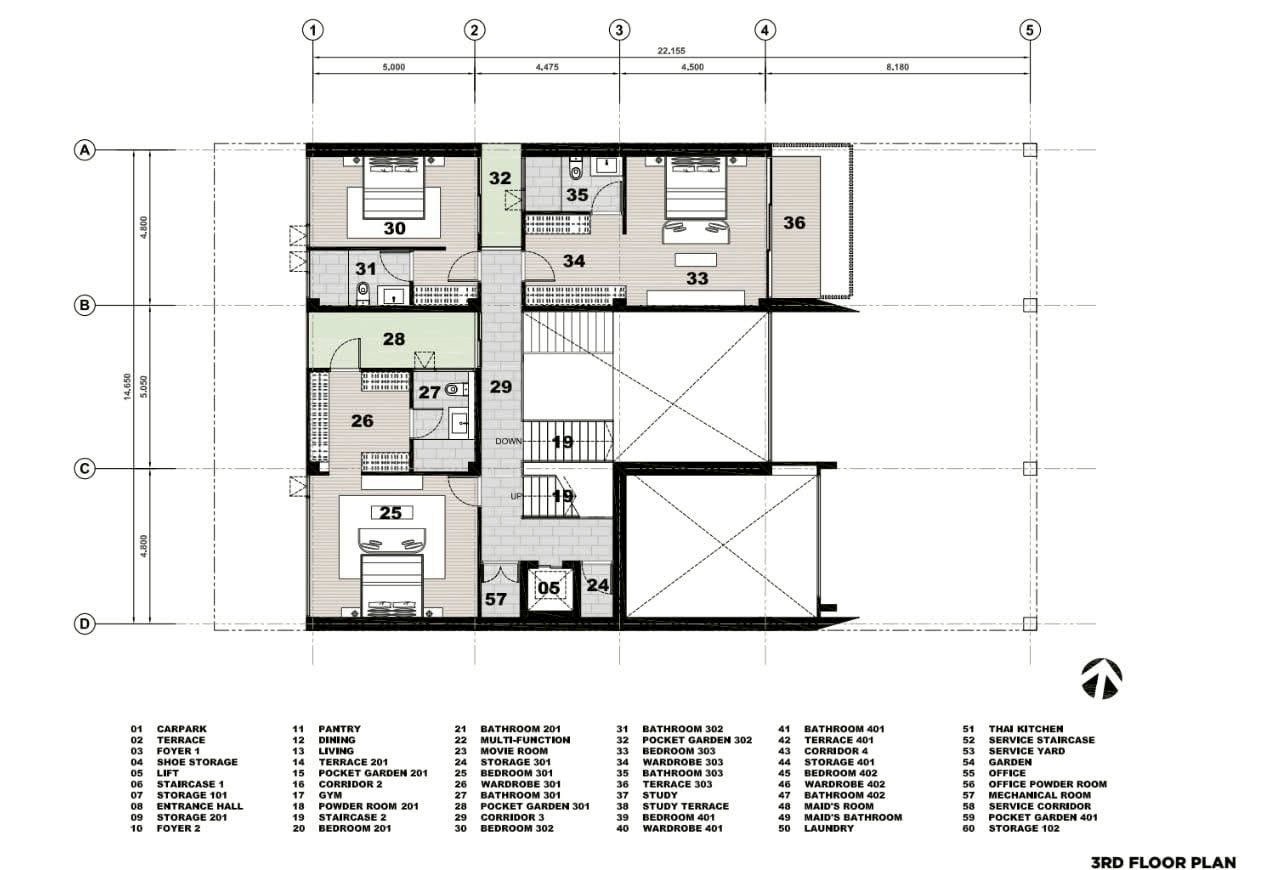
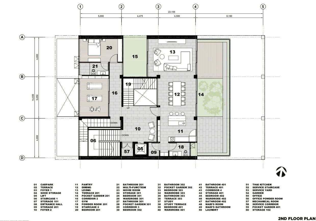
土地面积:95.6 平方哇
使用面积:901 平方米
共4层(含夹层)
6间卧室(均带独立卫生间)
2间公共卫生间
私人健身房、办公室、阅读室、影音室
多功能房、保姆房(带独立卫生间)、乘客电梯
空中花园 / Pocket Garden、停车位:8个
朝向:东
出售价格:5,500万泰铢(过户税费 50/50)
出租价格:350,000 泰铢/月(最短租期3年,押金2个月 + 预付1个月)


















