当前位置 : 首页> 曼谷-北揽>北榄府 |【紫色区】Bang Phli工业园区附近 工厂仓库出租 2,000平米 220,000泰铢/月

【北榄府-Bang Phli县 】北榄府 |【紫色区】Bang Phli工业园区附近 工厂仓库出租 2,000平米 220,000泰铢/月

最近更新: 02月13日 更新   |    房源编号:FY0025737    |     浏览人次:155
店鋪
称呼:泰国好房网
公司注册号: 0105563066648
所属公司: 泰国好房网
公司地址: 30th Floor,160/753 ITF Silom Palace,Silom Rd,Bangrak,Bangkok,Thailand.
经纪人房源
0658833344
留言查詢

楼盘概况

  • 月租:48585 元
  • 约泰铢: 220000  THB
  • 房型面积: 2000  平方
  • BTS轻轨 : 不适用
  • MRT地铁 : 不适用
  • 房间 : 单间
  • 客厅 : 1厅
  • 卫浴 : 1卫浴
  • 楼层 : 不适用
  • 装修状况 : 精装修
  • 朝向 :
  • 押金 : 面议
  • ALR机场专线 : 不适用

小区信息

详细描述

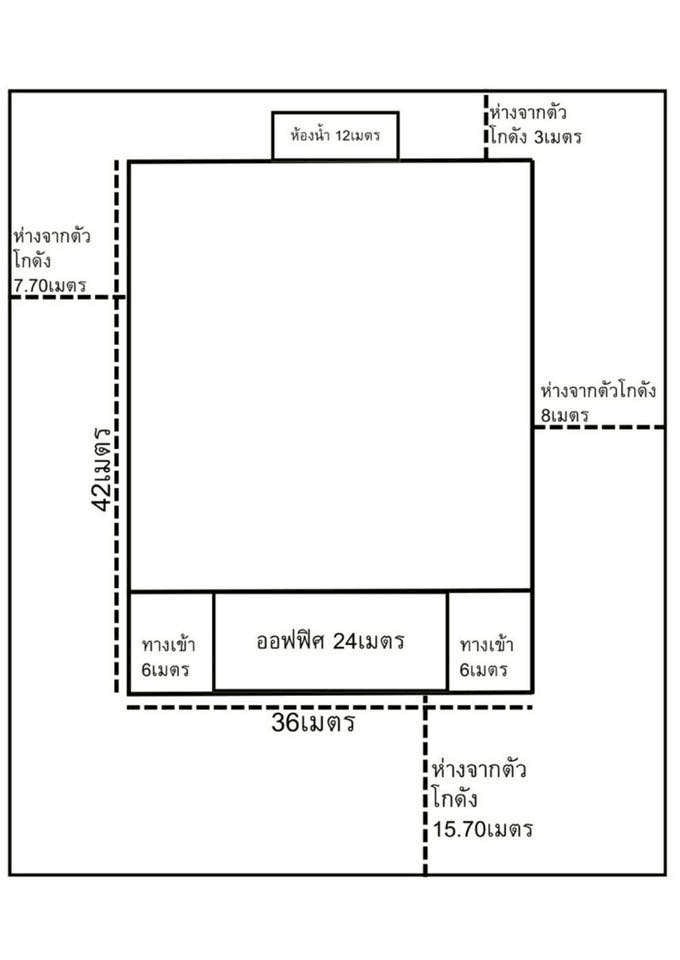
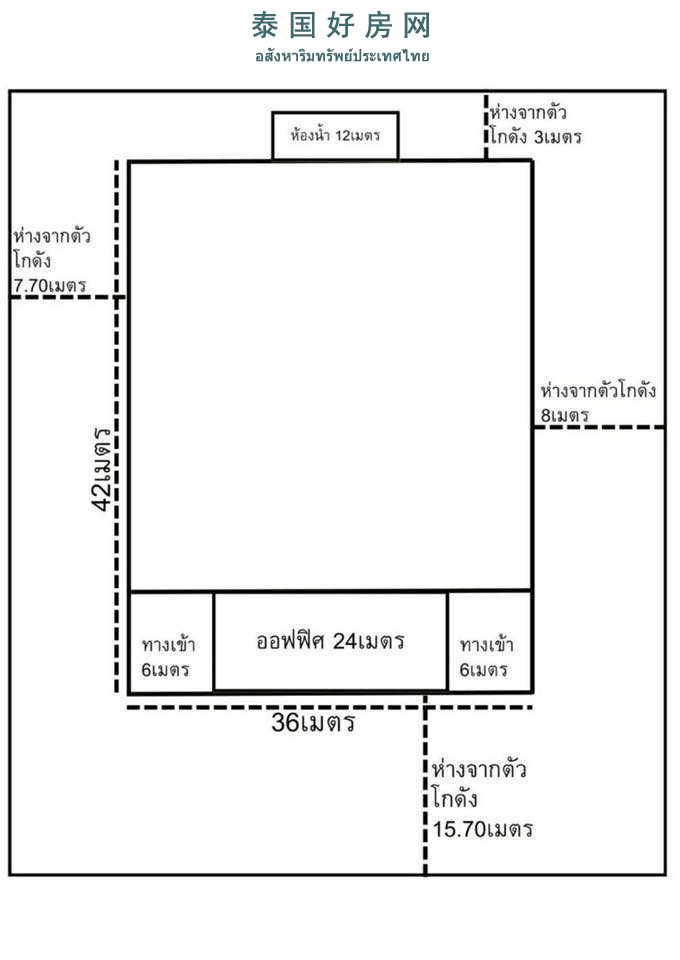
北榄府 |【紫色区】Bang Phli工业园区附近 工厂仓库出租 UA-2026-02-59

可用于多种经营用途,配套办公室面积 300 平方米
建筑左右两侧设有附属空间,并覆盖遮阳屋顶,使用面积充足

距离 Bang Phli 工业园区仅 1.8 公里
距离 Thepharak 路约 3 公里

地面承重:3 吨 / 平方米
电力系统支持至 400 安培

租金:220,000 泰铢 / 月

可协助办理工厂许可证(Ror.Ngor.4)及 BOI 相关手续


你可能有兴趣的楼盘

周边配套

房价走势

暂无数据
免责声明: 本页面仅供参考和借鉴,一切以售楼处公布为准
联 系 人:
联系电话:
沪ICP备18013953号

邮箱:ithaihome@gmail.com

小程序 欢迎使用小程序