
The Privacy Park Taopoon高层公寓位于曼谷-暖武里府主干道上。距离BTS Taopoon站仅500米,步行即可到达Tao Poon市场,生活便利。与周边项目相比,该项目单元数量较少,但拥有三层高的空中设施。提供高度私密的居住环境,还提供从单间公寓到两居室的各种户型,并可进行组合。起价为219万泰铢。
项目名称:The Privacy Park Taopoon
开发商:Pruksa房地产股份有限公司
项目位置:
曼谷,暖武里府路,Bang Sue区
占地面积:1-3-22.4莱
公寓类型:高层25层1栋
单位数量:347个住宅单元和2个商店
每层楼最多单位数:19个单位
停车场:40%(含双排停车)
开始施工:2024年第二季度
预计完工:2026年第一季度
房型:
-单间,使用面积22.45–26.60平方米
-1卧室,使用面积26.50–32.85平方米
-1卧室plus,使用面积34.85–49.50平方米
-2卧室2浴室,使用面积53.10–61.75平方米
天花板高度:2.60米
起拍价:219万泰铢
项目平均价格:约110,000泰铢/平方米
环境影响评估( EIA ):已通过
项目网站:
https://www.pruksa.com/theprivacy/parc-taopoon
咨询热线:1739
Privacy Parc Taopoon项目只有一个入口和出口,进入项目后,沿大楼单行道行驶。大楼前方设有下客点,方便住户直接在大堂上下车。需要停车的住户可前往大楼后方的入口。由于该项目为单栋建筑,交通通畅,且不复杂。
一楼完全是公共区域,楼前有一片绿地,方便住户外出散步。楼内有两家商店,方便住户购物,无需远行。并且设有共享办公空间和会议室,以及一个休闲区,可以在这里阅读书籍或休息。
6楼是住宅单元的起始楼层,该楼层住宅单元的亮点在于其超大阳台。对于那些喜欢户外休闲或喜欢种植盆栽,但又担心空间不足的住户来说,这个项目就是最佳选择
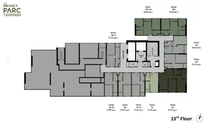
7–23层都是住宅楼层,布局相同,唯一的细微差别在于可用空间。该住宅楼呈L形布局,设有双走廊,电梯厅位于中间,略偏后(东)。每层最多可容纳19个单元,尽头的房间距离电梯仅几步之遥。
24楼是Sky Facility楼层及其部分住宅单元,共有7个住宅单元。走廊之间设有门,以保护此楼层住户的隐私。此楼层适合喜欢使用公共区域并欣赏高角度视野的住户。房间价格可能高于其他楼层。
这层最显眼的公共区域是L形设计的 游泳池。这是一个可以游泳和锻炼的小型泳池。此外,这里还设有一个按摩浴缸区,住户可以舒适地泡在水中,欣赏日落美景和远处的湄南河。
25楼是住宅楼层,共有8个住宅单元。有一扇门通往健身房。但是,其他楼层的住户必须从24楼的健身房走楼梯上去。此楼层也适合经常使用公共区域的人士。
屋顶整个区域都是花园,分为三个区域:菜园、云朵花园和屋顶草坪。这里非常适合喜欢户外屋顶氛围的住户,晚上可以在这里放松身心。
配套家具
大厅:滑动玻璃门
餐厅:供2人就坐的餐桌椅
卧室:5尺床及衣柜
浴室:SCG子公司Sosuco的卫生洁具
设施概要
1楼:&;amp;nbsp;
大堂
私人休息室
共享办公空间
邮箱
智能储物柜
会议室
洗衣房
创意花园
私家花园
6楼:
休息室
直播室
空中花园
24楼:
小型游泳池
海水游泳池(面积约9x23米)
泳池露台
按摩浴缸
空中休闲室
健身房
屋顶:
菜园
云朵花园
屋顶草坪
&;amp;nbsp;其他:
每栋楼有2部客梯
整个项目总电梯配比:174:1
1部服务电梯
停车位40%(含双排停车)
项目安全系统:CCTV/钥匙卡
样板房
价格
单间,使用面积22.45–26.60平方米
起价219万泰铢
1卧室,使用面积26.50–32.85平方米
起价245万泰铢
1卧室plus,使用面积34.85–49.50平方米
起价319万泰铢
2卧室2浴室,使用面积53.10–61.75平方米
起价555万泰铢
预留金:2,000-5,000泰铢,取决于所选的房间类型
合同金:8,000-25,000泰铢,取决于所选的房间类型
公维金:500泰铢/平方米
物业费:55泰铢/平方米/月