北柳府 |【一般区】Bangpakong Km. 53 工厂出租 UO-2025-10-13
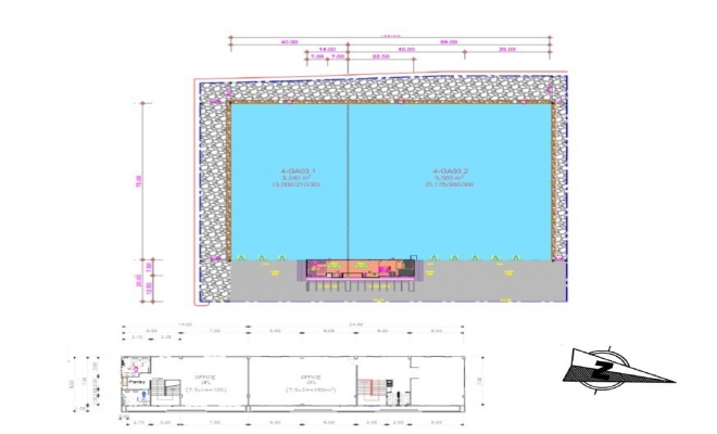
1)【11】
总面积:3,240平方米
仓库面积:3,000平方米
尺寸(宽×长):40×75米
办公区面积:210平方米
装卸坡道:30平方米
卷帘门:4个
停车位:5个
2)【12】
总面积:5,565平方米
仓库面积:5,175平方米
尺寸(宽×长):69×75米
办公区面积:360平方米
装卸坡道:60平方米
卷帘门:7个
停车位:8个
总面积(11-12):8,805平方米
租金:170泰铢/平方米
租期:3年
押金:4个月
预付:1个月
年底可交付使用***





