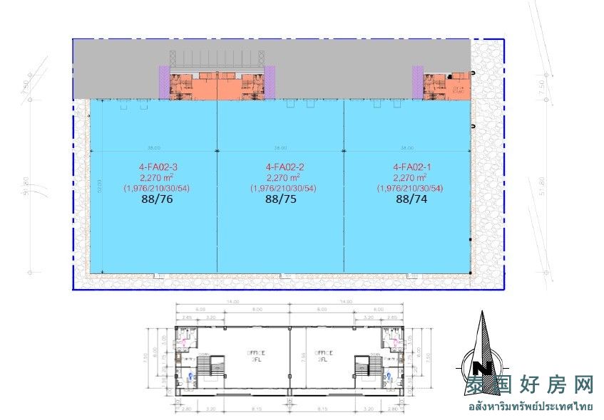
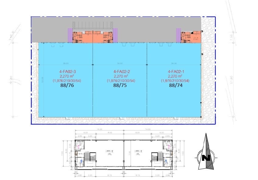
北柳府 |【保税区】Bangpakong Km. 53 工厂出租 UO-2025-10-37
1)总面积 = 2,270 平方米
仓库面积 = 1,976 平方米
尺寸(宽×长)= 38 × 52 米
办公室面积 = 210 平方米
斜坡 = 30 平方米
卷帘门 = 4 个
停车位 = 5 个
2)总面积 = 2,270 平方米
仓库面积 = 1,976 平方米
尺寸(宽×长)= 38 × 52 米
办公室面积 = 210 平方米
斜坡 = 30 平方米
卷帘门 = 4 个
停车位 = 5 个
3)总面积 = 2,270 平方米
仓库面积 = 1,976 平方米
尺寸(宽×长)= 38 × 52 米
办公室面积 = 210 平方米
斜坡 = 30 平方米
卷帘门 = 4 个
停车位 = 5 个
1-3)总面积 = 6,810 平方米
仓库面积 = 5,928 平方米
尺寸(宽×长)= 114 × 52 米
办公室面积 = 630 平方米
斜坡 = 90 平方米
卷帘门 = 11 个
停车位 = 15 个
租金:170 泰铢/平方米
租期:3 年
押金:5 个月
预付:1 个月
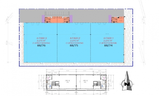
北柳府 |【保税区】Bangpakong Km. 53 工厂出租 UO-2025-10-37
1)总面积 = 2,270 平方米
仓库面积 = 1,976 平方米
尺寸(宽×长)= 38 × 52 米
办公室面积 = 210 平方米
斜坡 = 30 平方米
卷帘门 = 4 个
停车位 = 5 个
2)总面积 = 2,270 平方米
仓库面积 = 1,976 平方米
尺寸(宽×长)= 38 × 52 米
办公室面积 = 210 平方米
斜坡 = 30 平方米
卷帘门 = 4 个
停车位 = 5 个
3)总面积 = 2,270 平方米
仓库面积 = 1,976 平方米
尺寸(宽×长)= 38 × 52 米
办公室面积 = 210 平方米
斜坡 = 30 平方米
卷帘门 = 4 个
停车位 = 5 个
1-3)总面积 = 6,810 平方米
仓库面积 = 5,928 平方米
尺寸(宽×长)= 114 × 52 米
办公室面积 = 630 平方米
斜坡 = 90 平方米
卷帘门 = 11 个
停车位 = 15 个
租金:170 泰铢/平方米
租期:3 年
押金:5 个月
预付:1 个月





